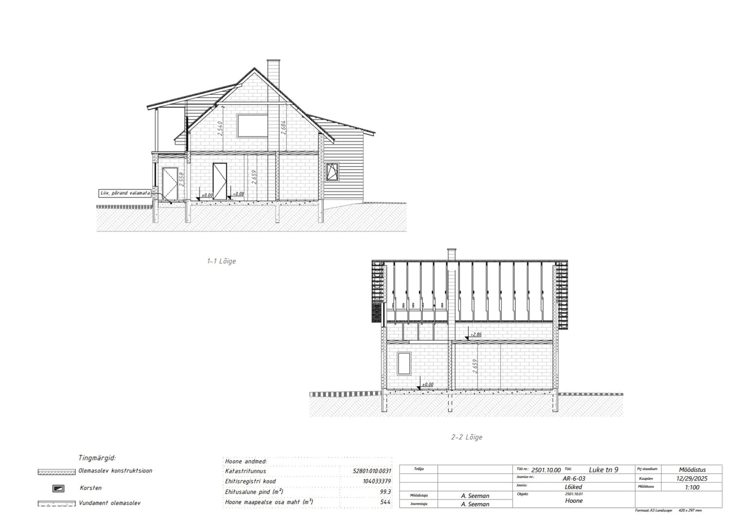
HOONE 3D MUDEL
Kui plaanid hoonet oluliselt ümber ehitada või laiendada, siis projekteerijad soovivad alustada tööd hoone 3D mudelist, mitte pelgalt 2D arhitektuursetest vaadetest ja plaanidest.
Hoone 3D mudel on eraldi lisateenus, mis luuakse otse punktipilve alusel.
Sinu projekteerija ei pea hoonet nullist 2D plaanide põhjal uuesti üles ehitama
Vähenevad eeldused, parandused ja ümbertegemised projekti käigus
Tegemist on lihtsa hoone 3D mudeliga (ei vasta RKAS BIM nõuetele).

HOONE 3D MUDEL








PARTNERID
Magrey OÜ - Reg. kood 11051369 - KM EE100922800 - Blogi - Privaatsus
Narva maantee 1, Tallinn