KORTERMAJA
ARHITEKTUURSED PLAANID
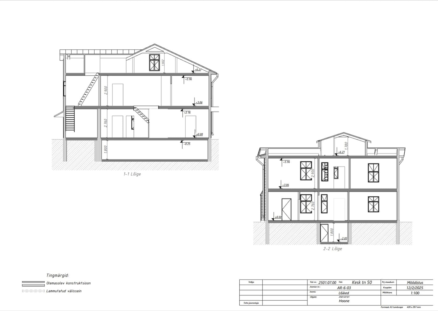
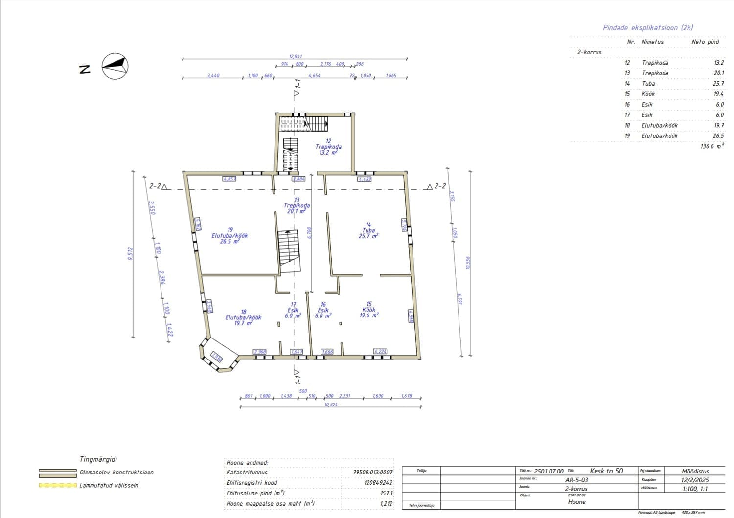
Arhitektuursed plaanid sisaldavad üldiselt kõiki korruseplaane, katusevaadet, 4 hoone vaadet ja 2 lõiget.
Korruseplaanidele on kantud ruumide eksplikatsioon, kuhu on märgitud ruumide nimed ja nende kasulik pindala.
Kortermaja plaanid on .DWG ja .PDF formaadis
Eraldi võimalik juurde tellida maja 3D mudel (ArchiCad) või ArchiCad tööfail
Plaanidele kantakse peale küttekehade ja soojuspumpade asukohad.




KORTERMAJA VAATED


KORTERMAJA LÕIKED

KORRUSEPLAANID


VUNDAMENT

KATUSEVAADE

Kas Sinugi kortermajast on alles vaid vanad paberplaanid või soovid korrastada Ehitisregistri andmeid?
Pakume 3D mõõdistamise teenuseid ja koostame kõik vajalikud hoone plaanid, vaated ja lõiked, mis on vajalikud nii kasutusloa saamiseks kui ka renoveerimisprojekti alustamiseks.

Väga kiire töö ning meeldiv teenindus!
Alari Laurend
elamu mõõdistamine Jõgevamaal


Suured tänud kiire ja täpse töö eest. Kaasaegse tehnoloogia kasutamisega sai kaks toodet ühe tööga. Graafiline 3D tuur oma hoones pluss arhitektuuri joonis. Töö oli üsna kiire ja täpne.
Reemet Sarv
kõrvalhoone mõõdistamine Tartumaal


Väga asjalik ja profesionaalne teenus! Esmane suhtlus ja tagasiside hinnapakkumise näol oli väga kiire ning konstruktiivne ja alates päringust kuni valmis töö kättesaamiseni läks 5 päeva.
Silver Saage
tootmishoone mõõdistamine Valgas

PARTNERID
Magrey OÜ - Reg. kood 11051369 - KM EE100922800 - Blogi - Privaatsus
Narva maantee 1, Tallinn